Vernasca Casa Semindipendente da Ristrutturare
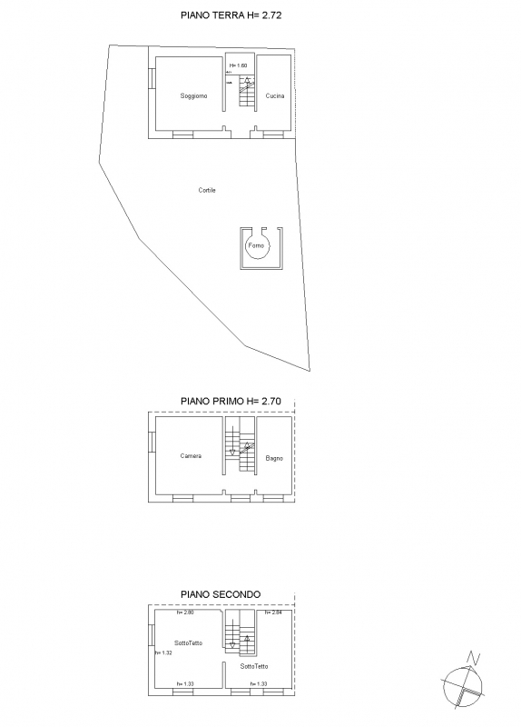
A Vernasca, in splendida zona collinare, proponiamo in vendita una caratteristica casa semindipendente di circa 90 mq, inserita in un contesto rurale tranquillo e immerso nel verde. L'immobile necessita di ristrutturazione completa, ma offre un'interessante opportunità di valorizzazione. Nelle immagini dell'annuncio troverete sia lo stato attuale della proprietà sia una possibile interpretazione del risultato finale, per aiutare a immaginare il grande potenziale dell'abitazione. La casa si sviluppa su tre livelli: Piano Terra Soggiorno e cucina separata, ambienti che possono essere reinterpretati in chiave moderna mantenendo il carattere rustico della struttura. Primo Piano Una camera matrimoniale e un bagno. Sottotetto Spazio accessorio con buone altezze, ideale per essere valorizzato come ulteriore ambiente funzionale o zona hobby. A circa 20 metri dall'abitazione è presente una barchessa accatastata C/2, perfetta come: ricovero attrezzi spazio per hobbistica deposito possibile progetto di dépendance o piccolo studio (previa verifica urbanistica). Completa la proprietà, a pochi metri dalla casa, un terreno seminativo di circa 500 mq, perfetto per: orto privato piccolo vigneto giardino o area relax. Caratteristiche principali • Posizione collinare panoramica • Contesto silenzioso immerso nella natura • Ampio potenziale di personalizzazione • Ideale come casa vacanze, investimento o residenza stabile Le immagini dell'annuncio mostrano sia la situazione attuale sia un possibile risultato dopo ristrutturazione, per aiutare a comprendere come questa proprietà possa trasformarsi in una affascinante casa in stile rustico di campagna. |




















